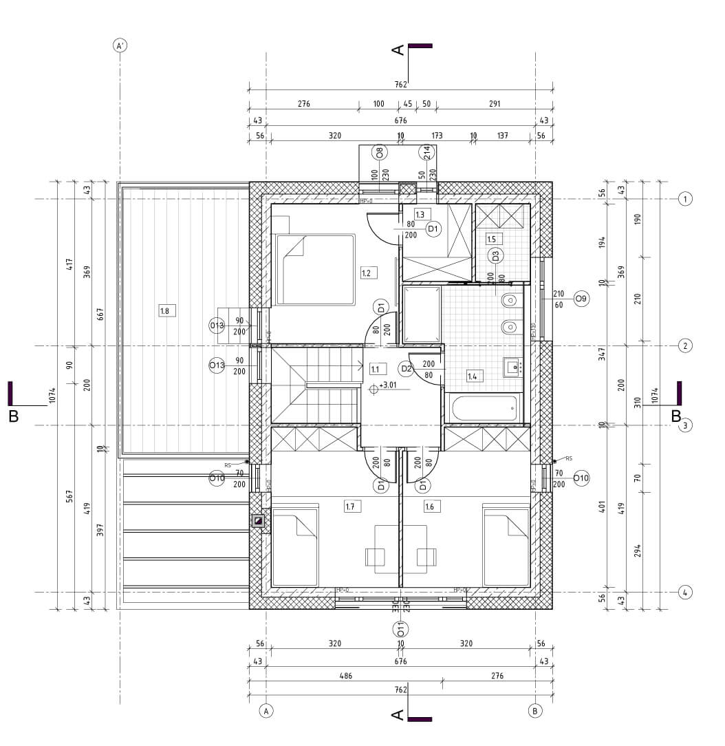
Projekt budowlany domu jednorodzinnego z garażem w Sobótce pod Wrocławiem. Dom dla czteroosobowej rodziny, w technologii tradycyjnej o zminimalizowanym zużyciu energii potrzebnej do ogrzewania. W budynku zaprojektowano pełna wentylacja mechaniczna z rekuperacją, przegrody oraz stolarkę okienną o wysokim współczynniku izolacyjności cieplnej. Duże otwarcia ze strony południowej fasady umożliwiają znaczne pasywne zyski cieplne. Prostota konstrukcji, zapewnia łatwość wykonawczą oraz ekonomikę w budowie.
Załadowany







